Loading...

- PARIS 17 TOCQUEVILLE - JOUFFROY D'ABBANS

320 000 €dont 6,67% TTC à la charge de l'acquéreur300 000 € hors honoraires
PARIS 17ème
2 pièce(s)
1 chambre(s)
1 salle(s) de bain
31m²
- Description du bien
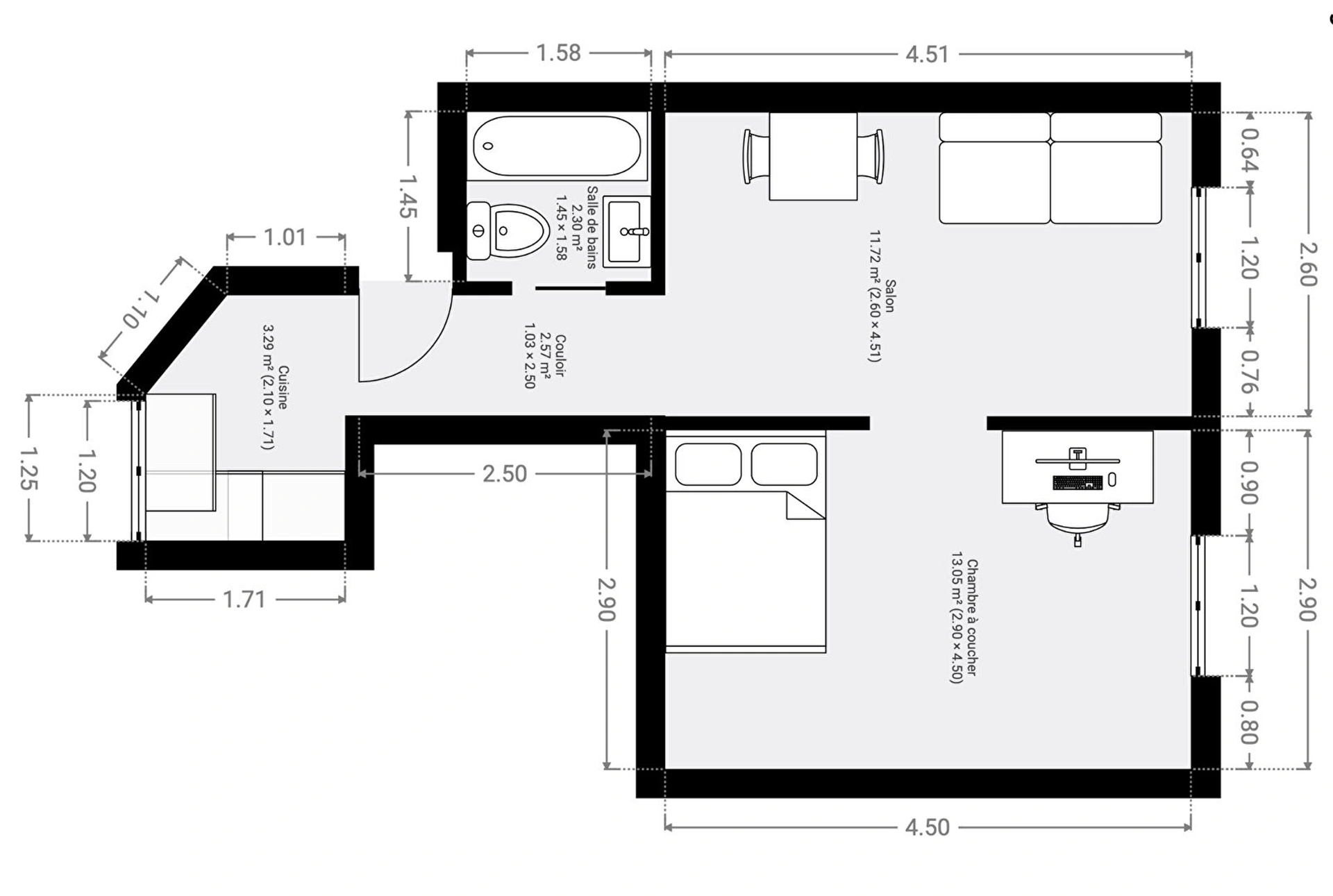
Votre agence FREDeLION Ternes vous propose en exclusivité cet appartement idéalement situé rue Jouffroy d'Abbans, au coeur d'un quartier très recherché, à proximité immédiate des commerces, des transports et des adresses emblématiques du secteur.

Situé au 3? étage sans ascenseur d'une copropriété bien entretenue avec concierge, ce bien se compose d'une entrée, de deux pièces lumineuses offrant une vue dégagée sur rue, d'une cuisine séparée, ainsi que d'une salle de bains avec WC.

L'appartement séduit par sa luminosité, sa configuration fonctionnelle sans perte d'espace et son fort potentiel.

Grâce à son emplacement privilégié, il constitue une opportunité idéale aussi bien pour une résidence principale que pour un investissement locatif.

Un bien rare dans ce secteur prisé, offrant un cadre de vie typiquement parisien.
(6.67 % honoraires TTC à la charge de l'acquéreur.)
Copropriété de 43 lots - dont 32 lots habitation. (Pas de procédure en cours).

Charges annuelles : 1370 euros.
Ce bien fait parti d'une co-propriété de 43 lots. Les charges sont de 1370€ par an. Pas de procédure en cours.
- FREDéLION, c'est...
Chiffre
15
années
d'expertises
Chiffre
3313
avis clients
(MeilleursAgents, Google my business et Opinion System)
Chiffre
106
collaborateurs
à votre service
Votre agence
36 avenue Niel, 75017 Paris
01 83 64 23 24
Contactez-nous
Pour ce bien
*champs requis
Loading...
Les informations recueillies sur ce formulaire sont enregistrées dans un fichier informatisé par FREDéLION Ternes pour gérer votre demande de contact. Elles sont conservées pour la durée nécessaire à la gestion de la relation client dans le respect des prescriptions légales applicables et sont destinées au responsable de la publication de ce site : FREDéLION Ternes.
Conformément à la loi « informatique et libertés », vous pouvez exercer votre droit d'accès aux données vous concernant et les faire rectifier en contactant FREDéLION Ternes ternes@fredelion.com ou en utilisant ce formulaire. Nous vous informons de l’existence de la liste d'opposition au démarchage téléphonique « Bloctel », sur laquelle vous pouvez vous inscrire ici : https://www.bloctel.gouv.fr/
STERN GROUP, société au capital de euros. Siège social : 36 Niel 75017 Paris. N° de TVA intracommunautaire : . RCS immatriculé(e) 953478898.
Conformément aux articles L611-1 et suivants et R612-1 et suivants du Code de la consommation, le consommateur est informé qu’il a la possibilité de saisir un ou notre médiateur de la consommation, à savoir situé
Barème d'honoraires